전세만기가 도래하여 또 이사준비를 한다
같은동네 아파트 단지4개중 2개를 살고 다른 3개차......



동일한 단지는 아니지만 같은 메이커라서 비슷해 보여 받았다
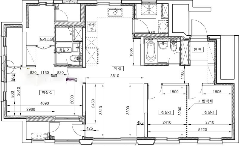
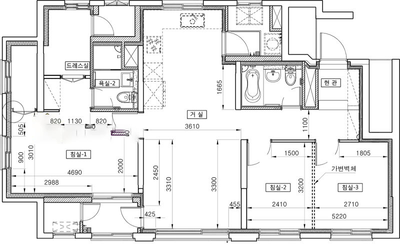
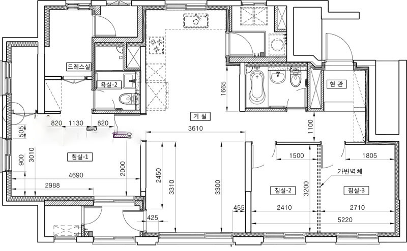
CAD로 도면화 하고

내방에 있는 가구를 배치하면...

대강 이정도...
| 미국 출장을 간다... (0) | 2024.01.15 |
|---|---|
| 촌집 수리... (0) | 2024.01.07 |
| 고프로 히어로6용 액세서리들을 샀는데… (0) | 2019.06.13 |
| 고프로 히어로6 블랙 렌즈 교체... (0) | 2019.06.07 |
| 산책의 연우 (0) | 2019.04.12 |